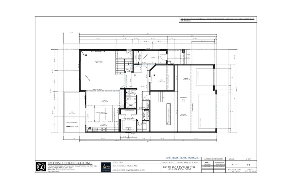
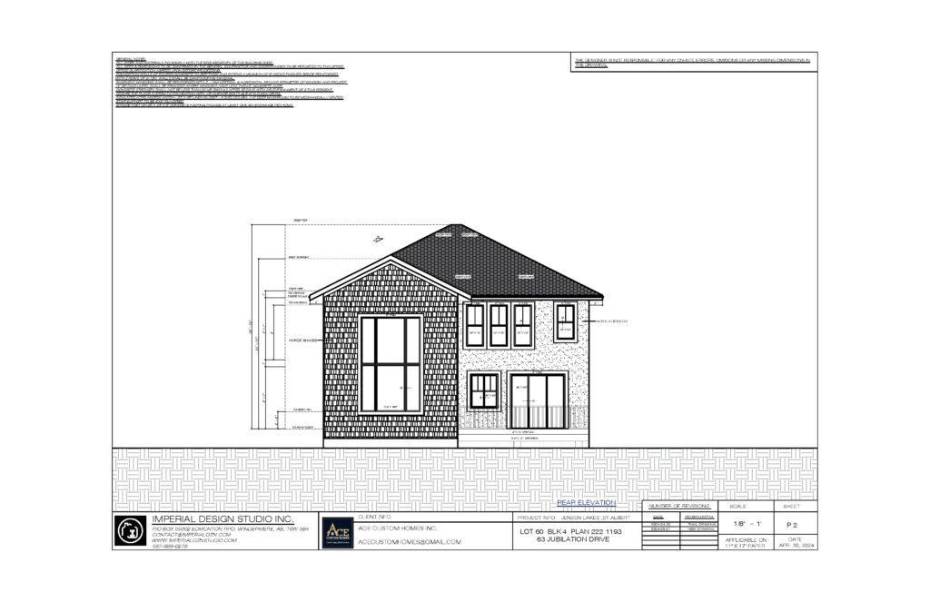
Address
63 Jubilation Dr
Total Area
2835 SQ.FT
Price
$999,000

63 Jubilation Dr

Message Us

    Contact Info

    Phone

    1-780-263-8223

    Email

    info@AceCustomHomes.ca

    Our Address

    707 180 St SW, Edmonton, AB T6W 2S8